La plaza de Munto, en Aiete, tendrá un escenario, manzanos y bancos hacia el sur
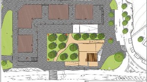
La futura plaza de Munto, que sustituirá al solar vacío tras el derribo del viejo caserío del mismo nombre, contará con un escenario, bancos en el perímetro de la desaparecida construcción, que mirarán al sur, y un escenario de seis por siete metros. Este estrado, además de servir para acoger las distintas manifestaciones festivas y culturales al aire libre, tendrá también la doble función de esconder la bodega del viejo caserío, al que podrían retornar sus kupelas, así como la de sujetar parte del muro de Munto, que quedará integrado como vestigio histórico dentro de la nueva urbanización propuesta.
La plaza, además, quedará dividida en dos partes. Por un lado la “identitaria”, en la que estarán los restos del viejo merendero y habrá actos culturales y, por otra, una zona verde, con césped y arbolado.
El técnico municipal Imanol Iturria fue el encargado de presentar a los numerosos vecinos que se congregaron en el Topaleku de Aiete la propuesta del Ayuntamiento. Esta es un compendio del medio centenar de iniciativas sugeridas por los vecinos del barrio, así como por equipos de especialistas, dentro del concurso convocado por la asociación de vecinos de Aiete, Lantxabe, el pasado verano para recabar ideas de cara a convertir el solar de Munto en una plaza pública atractiva para el vecindario.
La gran cantidad de propuestas para la obra hizo que el plazo de presentación se ampliase y las iniciativas fueron expuestas posteriormente en la casa de cultura del barrio.
Mientras tanto, el proceso abierto en el barrio para ir decidiendo como será la nueva plaza se completará con una nueva exposición del proyecto, con algunos detalles más definidos, el 11 de abril. Tras la Semana Santa se celebrará una nueva reunión vecinal para concretar el aspecto final que tendrá el lugar situado en pleno centro del barrio de Aiete.


